BEREITS VERKAUFT/VERMIETET Sehr moderne 3,0-Zimmer-Wohnung mitten in Manerba del Garda!

Manerba del Garda | Gardasee | Italien

Objektdetails

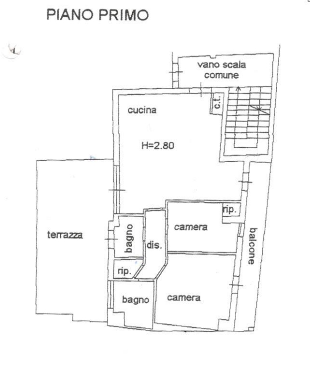
Preis : 219.000,00 € Typ : Auslandsimmobilien Status : bereits verkauft/vermietet Objekt-Nr: ICB029 Baujahr: 1970 Bodenbelag: Fliesen Stellplatz: Ja Wohnfläche: ca. 80 m² Zimmeranzahl: 3 Badezimmer: 2 Bauweise: massiv Heizung: Zentralheizung (Gas) Energieausweis: Liegt zur Besichtigung vor Energieverbrauch: Liegt zur Besichtigung vor Geschoss: Obergeschoss Käufer-Courtage: 4,88 % (inkl. ges. MwSt.)

Objektbeschreibung

Zum Verkauf:

Komfortable und geräumige Wohnung im Herzen von Manerba del Garda. Bestehend aus 2 Schlafzimmern, Küche und Wohnzimmer, einem Balkon und einer großen Terrasse, die perfekte Wohnung für Sie und Ihre Familie! Genießen Sie frisch zubereitete Limonade auf der Terrasse oder laden Sie Freunde zum Grillen ein, es gibt viele Möglichkeiten den Außenbereich zu nutzen. Die Wohnung ist außerdem mit einem Abstellraum für Waschmaschine und Putzmittel sowie einer Garage und einem zusätzlichen Keller für Ihre Fahrräder ausgestattet. Darüber hinaus verfügt die Wohnung über eine Klimaanlage, die perfekt ist, um heißen Sommertagen zu entkommen, und alle Fenster und Türen haben Moskitonetze.

Manerba del Garda (5.300 Einwohner) ist einer der bekanntesten Orte am Westufer des Gardasees. Manerba ist für seine malerische Uferzone mit dem kleinen Hafen Porto Dusano und den schönen langen Stränden bekannt. In Manerba del Garda finden Sie alle Einrichtungen für das tägliche Leben sowie Restaurants und Freizeitmöglichkeiten.

 

Unser “Full-Service-Paket”

Für uns ist es wichtig, dass Sie sich beim Kauf einer Immobilie am Gardasee Rundum-sorglos fühlen. Daher bieten wir Ihnen unser spezielles „Full-Service-Paket“ an:

• Komplettbetreuung durch einen deutschsprachigen Immobilienmakler.
• Deutschsprachiger Notarvertrag und Abwicklung.
• Unterstützung bei einer evtl. Finanzierung durch eine italienische Bank.
• Sie möchten etwas renovieren, modernisieren oder sanieren? Wir vermitteln Ihnen einen deutschsprachigen Bauunternehmer mit sehr viel Erfahrung sowie einem großartigen Netzwerk direkt am Gardasee, der die gewünschten Gewerke zum Festpreis anbietet.
• Sie möchten Ihre Immobilie vermieten? Wir vermitteln Ihnen eine deutschsprachige Agentur, die sich auf Ferienwohnungen/-häuser am Gardasee spezialisiert hat und Ihnen die komplette Buchung sowie alle organisatorischen Aufgaben abnimmt. 


Wussten Sie, dass Sie mit dieser Immobilie auch eine Rendite von ca. 5,0% realisieren können? Sprechen Sie uns an und wir werden mit Ihnen zusammen eine bespielhafte Berechnung durchführen.


Rechtshinweise:

Die Angaben in diesem Exposé beruhen auf uns erteilten Informationen. Eine Haftung für die Richtigkeit und Vollständigkeit können wir jedoch nicht übernehmen. Unser Nachweis- und/oder Vermittlungshonorar beträgt vom Käufer bei einem Kauf 4,88% des Kaufpreises, inklusive der gesetzlichen Mehrwertsteuer, fällig bei Vertragsabschluss.

Kontakt zum Makler

07062 / 67 69 03
07062 / 67 69 04
m.reisser@immo-bottwartal.de