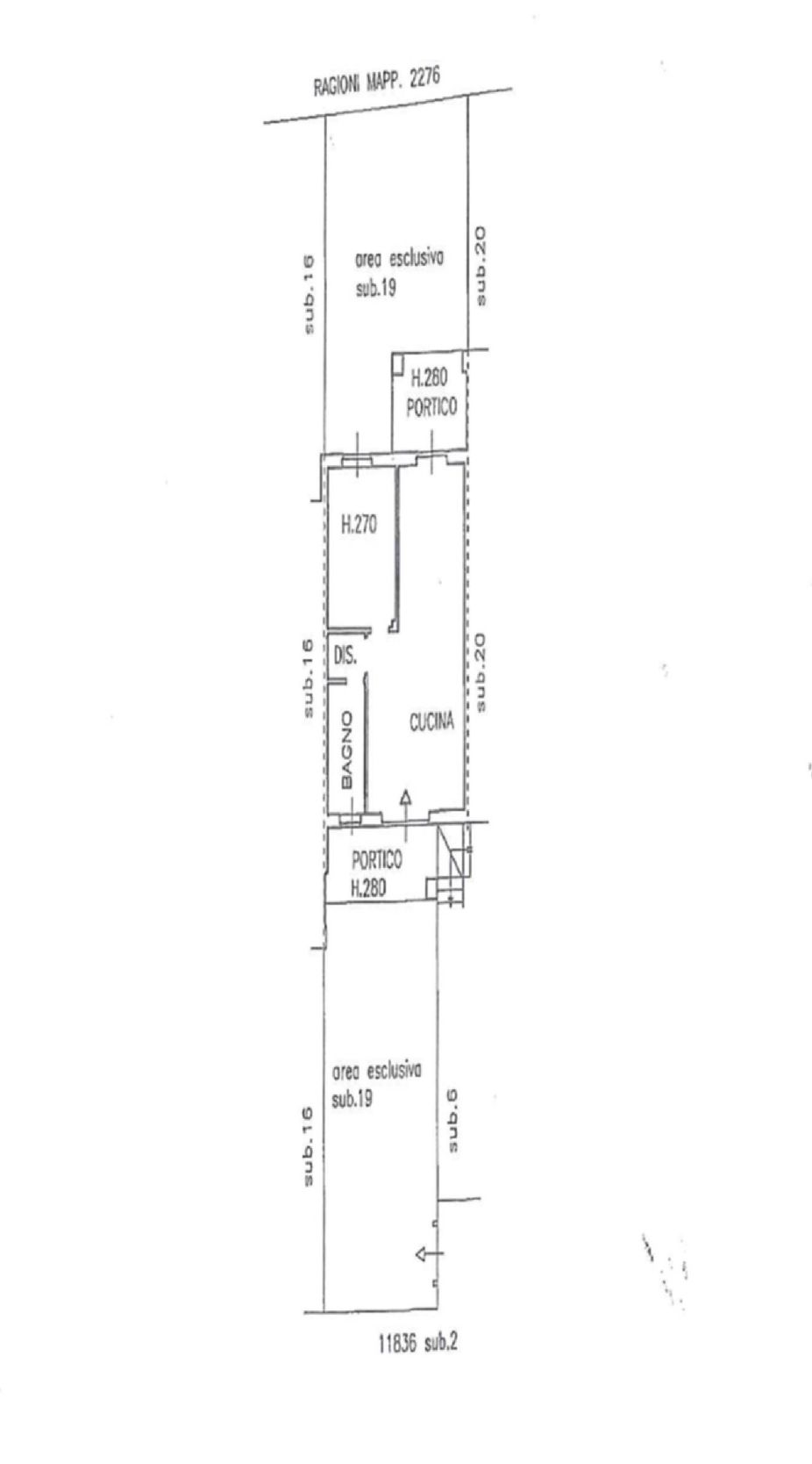
Mit zwei überdachten Terrassen und jeweils einem Privatgarten (insg. ca. 70qm) können Sie hier so richtig entspannen und die schönsten Tage im Jahr so richtig genießen. Die Wohnung befindet sich in einer kleinen und ruhigen Anlage und hat neben dem großzügigen Gemeinschaftspool auch noch einen sehr schön angelegten Gemeinschaftsgarten.
Die Wohnung selbst hat ein großes Wohn-/Esszimmer mit offener Küche sowie ein Schlafzimmer und ein Badezimmer (Tageslicht).
Des weiteren gehört zu dieser Wohnung noch ein Stellplatz sowie eine Garage für 2 PKW`s.
Zudem ist diese Wohnung nur ca. 300m vom Gardasee entfernt und daher von der Lage mehr als perfekt.
Manerba del Garda (5.300 Einwohner) ist einer der bekanntesten Orte am Westufer des Gardasees. Manerba ist für seine malerische Uferzone mit dem kleinen Hafen Porto Dusano und den schönen langen Stränden bekannt. In Manerba del Garda finden Sie alle Einrichtungen für das tägliche Leben sowie Restaurants und Freizeitmöglichkeiten.
Unser “Full-Service-Paket”
Für uns ist es wichtig, dass Sie sich beim Kauf einer Immobilie am Gardasee Rundum-sorglos fühlen. Daher bieten wir Ihnen unser spezielles „Full-Service-Paket“ an:
• Komplettbetreuung durch einen deutschsprachigen Immobilienmakler.
• Deutschsprachiger Notarvertrag und Abwicklung.
• Unterstützung bei einer evtl. Finanzierung durch eine italienische Bank.
• Sie möchten etwas renovieren, modernisieren oder sanieren? Wir vermitteln Ihnen einen deutschsprachigen Bauunternehmer mit sehr viel Erfahrung sowie einem großartigen Netzwerk direkt am Gardasee, der die gewünschten Gewerke zum Festpreis anbietet.
• Sie möchten Ihre Immobilie vermieten? Wir vermitteln Ihnen eine deutschsprachige Agentur, die sich auf Ferienwohnungen/-häuser am Gardasee spezialisiert hat und Ihnen die komplette Buchung sowie alle organisatorischen Aufgaben abnimmt.
Wussten Sie, dass Sie mit dieser Immobilie auch eine Rendite von ca. 5,0% realisieren können? Sprechen Sie uns an und wir werden mit Ihnen zusammen eine bespielhafte Berechnung durchführen.
Rechtshinweise:
Die Angaben in diesem Exposé beruhen auf uns erteilten Informationen. Eine Haftung für die Richtigkeit und Vollständigkeit können wir jedoch nicht übernehmen. Unser Nachweis- und/oder Vermittlungshonorar beträgt vom Käufer bei einem Kauf 3,57% des Kaufpreises, inklusive der gesetzlichen Mehrwertsteuer, fällig bei Vertragsabschluss.