BEREITS VERKAUFT/VERMIETET Gewerbehalle zu vermieten (Produktion Lager / Büro / Ausstellung / Werkstatt)

Freiberg am Neckar | Ludwigsburg (Kreis)

Objektdetails

Preis : 2.060,00 € Typ : Büro & Gewerbe Status : bereits verkauft/vermietet Objekt-Nr: miet016 Baujahr: 1977 / 1996 Stellplatz: ca. 5 Gewerbefläche: ca. 412 m² Bauweise: massiv Heizung: Zentralheizung (Öl) Nebenkosten pro m²: ca. 1,00 EUR Mietpreis pro m²: 5,00 EUR Kaution: 2 Monatsmieten Käufer-Courtage: 2,38 % (inkl. ges. MwSt.)

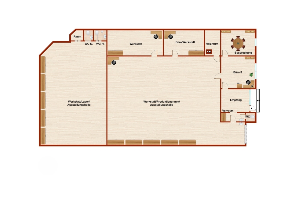
Objektbeschreibung

 

 

Zur Vermietung:

 

Egal ob Sie Büroflächen oder Lagerflächen suchen, ob Sie einen neuen Standort für Ihre Produktion oder Ausstellungsfläche benötigen oder ein Ladengeschäft eröffnen möchten – dann sind Sie hier genau richtig! Die Flächen können nicht nur flexibel genutzt werden sondern auch überwiegend flexibel geteilt werden, so dass keine Wünsche offen bleiben. Die Anlieferung erfolgt über eine Lade-Rampe mit Rolltor, an der auch große LKW entladen können. Vor dem Objekt gibt es ausreichend Stellplätze, welche im Mietpreis inbegriffen sind.

-Lade-Rampe mit Rolltor
-Deckenhöhe 3 m
-Starkstrom
-Glasfaser-Anschluß
-LAN-Netzwerk-Verkabelung
-Druckluft

Die Gewerbehalle befindet sich in Freiberg am Neckar im Gewerbegebiet „Ried“, welches über eine sehr gute Verkehrsanbindung verfügt. Die Autobahnanschlussstelle der A81 (Ludwigsburg-Nord) befindet sich nur wenige Kilometer entfernt und ist in 6 Minuten erreichbar. Die S-Bahn-Haltestelle in Freiberg erreichen Sie in 5 Minuten und den Flughafen in Stuttgart in ca. 35 Minuten.

 

Rechtshinweise:

Die Angaben in diesem Exposé beruhen auf uns erteilten Informationen. Eine Haftung für die Richtigkeit und Vollständigkeit können wir jedoch nicht übernehmen. Unser Nachweis- und/oder Vermittlungshonorar beträgt vom Mieter bei einer Anmietung 2,38 Monatsmieten von der monatlichen Nettomiete, inklusive der gesetzlichen Mehrwertsteuer, fällig bei Vertragsabschluss.

 

 

 

Kontakt zum Makler

07062 / 67 69 03
07062 / 67 69 04
m.reisser@immo-bottwartal.de